Contemporary Theatre: An Immersive Landscape

Contemporary experimental theatre has evolved into an interactive immersive experience. While traditional theatre designs are tasked with facilitating these performances, their layout and infrastructure is often unable to support the demands of dissolving the boundaries between the spectator and the performer.  

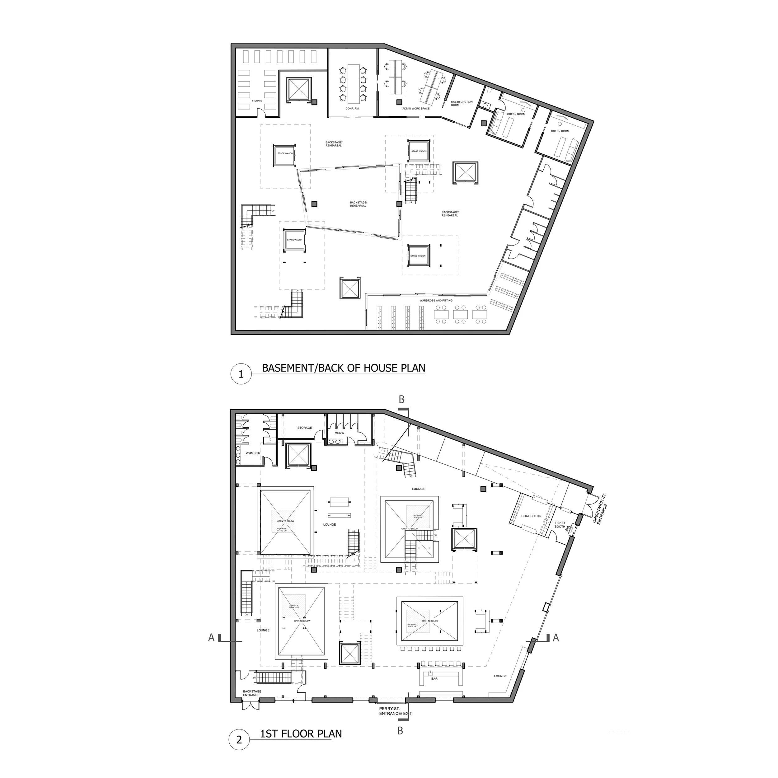
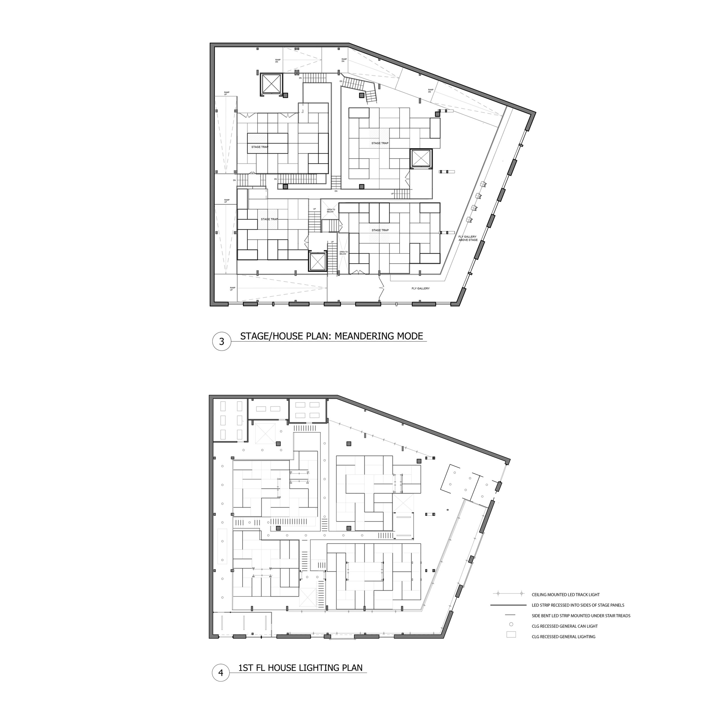
This thesis, immersive prosthetics, aims to dissolve such boundaries by functioning as an intermediate between the stage and the house. The theatre design consists of a suspended stage design that simultaneously functions as the auditorium. Tessellated from a kinetic module inspired by paper folding, the relationship of stage and house, audience and performers, can be altered according to program needs, accommodating common theatre types such as promenade, thrust and flat studio stages. Through the interplay with partition components inspired by flat sheet pop-up design, the audience can take part in modifying the viewing experience.

The theatre stands as a subversive approach to the conventional, wherein the production process is exposed, to the audience, forming a self-evolving conflation of stage and life.